Cement Plant Example
We had been involved with FLSmidth team of commissioning , operating , and maintenance of the cement plant of HOLCIM group during 2009 till 2014.
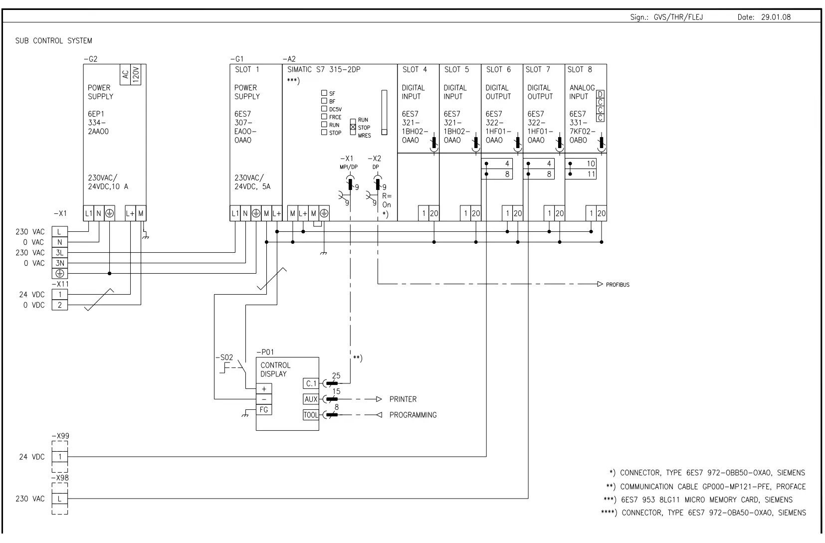
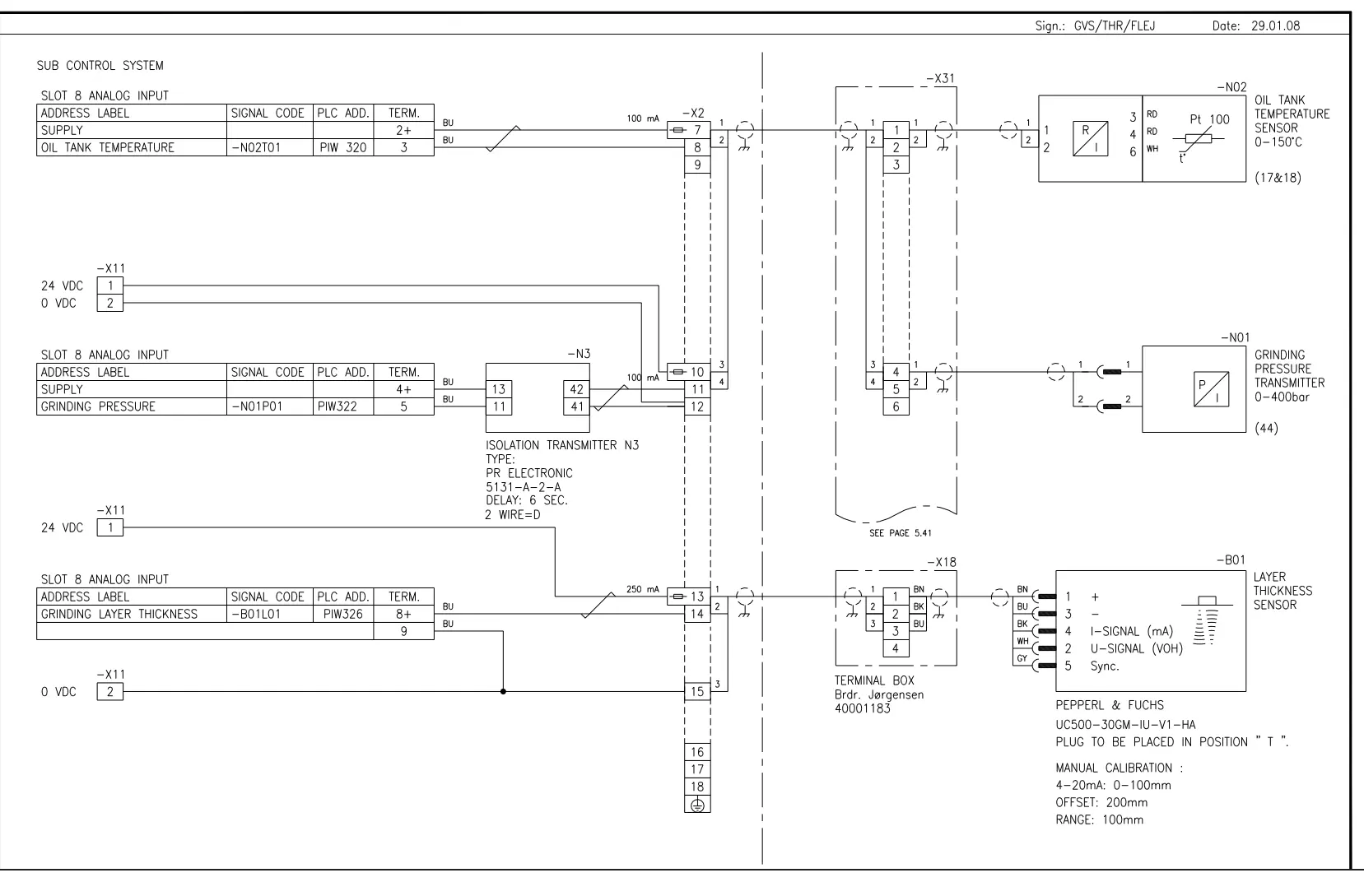
we were responsible about automation plc programming especially S7300 , and S7400 PLCs including Proface HMIs.
